Potřebuji řešit Nejčastěji hledáte logo

Potřebuji řešit

  • Aktuality
  • Slavnostním poklepáním základního kamene započala stavba školky
Aktualita

Slavnostním poklepáním základního kamene započala stavba školky

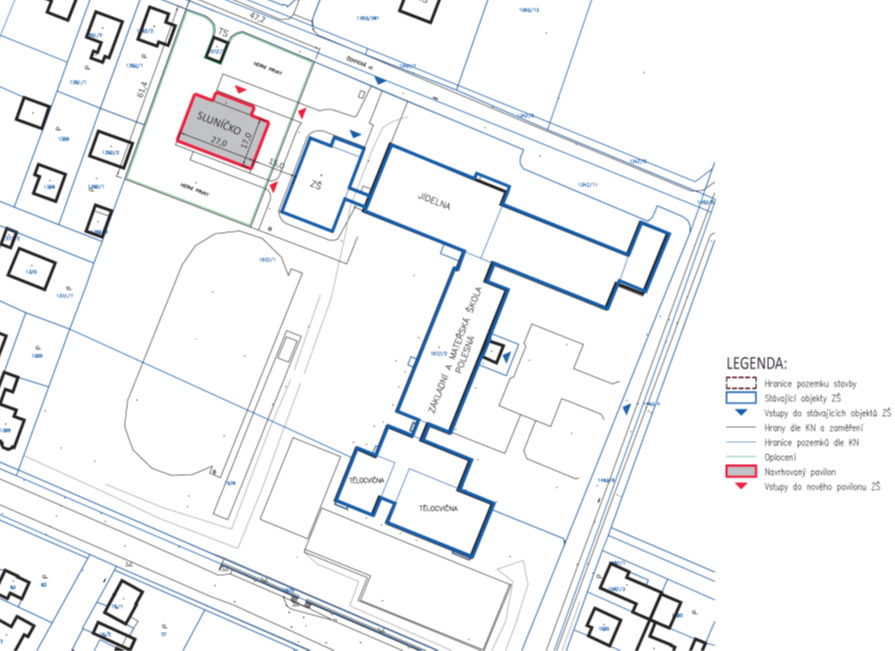
Slavnostním poklepáním základního kamene za přítomnosti starosty MČ Praha 21 pana Milana Samce započala dlouho očekávaná výstavba nové budovy MŠ Sluníčko v Újezdě nad Lesy.

Ve zjednodušeném podlimitním řízení byl vybrán zhotovitel stavby společnost BH stavby a konstrukce s.r.o. Během dubna byla podepsána smlouva o dílo a začátkem května proběhlo předání staveniště.

V rámci přípravy byla přesunuta současná zahrada školky, právě na ní totiž bude stát nová budova. V těchto dnech jste si již mohli všimnout, že probíhá příprava staveniště a práce na založení stavby.

„Jsem velmi rád, že se podařilo za pomoci dotace Magistrátu zahájit realizaci této stavby. Výstupy z demografické studie nám již několik let ukazují, že 3. patro základní školy je nutno uvolnit pro žáky školy. Současně se také s novou budovou školky zvýší komfort pro děti, rodiče i pedagogy, kteří nebudou muset stoupat několikrát denně patra nahoru“, řekl starosta Milan Samec.

A jestli vás zajímají fakta, pak základní údaje jsou tyto:

Dvoupodlažní budova s plochou střechou

Vstup ze severní strany z ulice Čentická

Architektonicky a barevně v souladu se sousední budovou ZŠ

Zastavěná plocha: 502,3 m2

Výška stavby: 8 m

Obestavěný prostor: 4270 m3

„Pokud půjde stavba podle plánu, měla by být školka dokončena v polovině roku 2022 a již od září 2022 se mohou všichni těšit do nových prostor. Prosíme o zvýšenou opatrnost při pohybu v okolí stavby a omlouváme se za případná omezení stavbou způsobená“, dodává na závěr starosta Milan Samec.

MŠ Sluníčko_4.png

Osoba odpovědná za aktuálnost informací:
Published

Přihlášení / Můj účet

Můžete se přihlásit prostřednictvím sociálních sítí.

Kontakt

Úřad městské části Praha 21

Staroklánovická 260
190 16, Praha 9
tel.: +420 281 012 911
fax.: +420 281 971 531
el. podatelna: podatelna@praha21.cz
ID datové schránky: bz3bbxj
IČ: 00240923

Úřední hodiny

PO: 8:00 - 12:00 / 13:00 - 17:30
ÚT: Není úřední den
ST: 8:00 - 12:00 / 13:00 - 17:30
ČT: Není úřední den
PÁ: 8:00 - 12:00

Matrika v případě svatby omezený provoz