Potřebuji řešit Nejčastěji hledáte logo

Potřebuji řešit

  • Aktuality
  • Stavba nové školky jde podle plánu
Aktualita

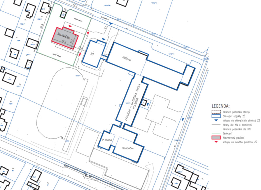
Stavba nové školky jde podle plánu

Naše nová budova MŠ Sluníčko každým dnem roste, máme z toho velkou radost. Hotová by měla být v roce 2022. Díky ní se už nebudou muset děti, učitelé a rodiče každý den trmácet několikrát přes spoustu pater. Kapacita školky bude pro 108 dětí, které se mohou už teď těšit na nové moderní prostory. Zároveň se uvolní třetí patro školy, které potřebujeme pro žáky ZŠ.

V tuto chvíli pečlivě sledujeme, aby vše probíhalo tak, jak má. Pravidelně se účastníme kontrolních dní spolu s ředitelkou Plašilovou z MŠ. Zdárná výstavba školky je jednou z našich hlavních priorit. Tuto mimořádnou stavbu realizujeme díky finanční podpoře Magistrátu hl. m. Prahy.

P21_prapor_aktuality.png

Osoba odpovědná za aktuálnost informací: Lambertová Ludmila
Published

Přihlášení / Můj účet

Můžete se přihlásit prostřednictvím sociálních sítí.

Kontakt

Úřad městské části Praha 21

Staroklánovická 260
190 16, Praha 9
tel.: +420 281 012 911
fax.: +420 281 971 531
el. podatelna: podatelna@praha21.cz
ID datové schránky: bz3bbxj
IČ: 00240923

Úřední hodiny

PO: 8:00 - 12:00 / 13:00 - 17:30
ÚT: Není úřední den
ST: 8:00 - 12:00 / 13:00 - 17:30
ČT: Není úřední den
PÁ: 8:00 - 12:00

Matrika v případě svatby omezený provoz